Stambeni objekat

Stambeni objekat, projektovan na katastarskoj parceli broj: 1358/150 KO Oblačina.

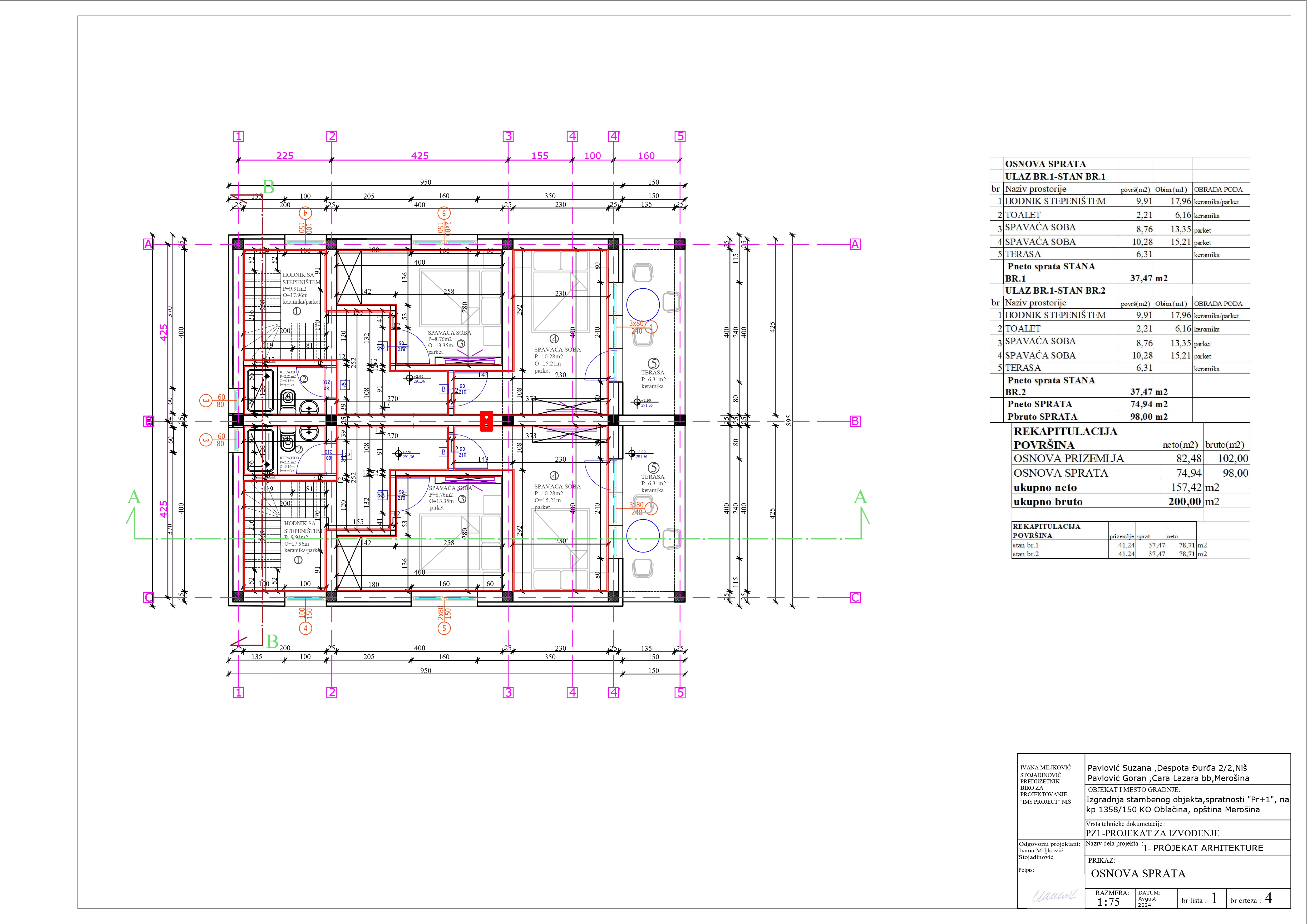
Projektovan je kao stambeni objekat, sa dve stambene jedinice i dva zasebna ulaza, spratnosti ,,Pr+1’ na turističkoj lokaciji, na samoj obali Oblačinskog jezera, opština Merošina.

Investitor : Suzana i Goran Pavlović

Naziv projekta : Stambeni objekat

Lokacija : Oblačina, Merošina